it

Lugano: 4 room office in a strategic location

Lugano - Piazza Molino Nuovo
CHF 2’300 / month
Primal Features
126 m²
Surface
4.5
Rooms
4
Bedrooms
2
Bathrooms
Description
Offices on two floors and parking spaces, good visibility.
Monthly rent CHF 2,000 + advance payment for additional expenses CHF 300 (heating included).
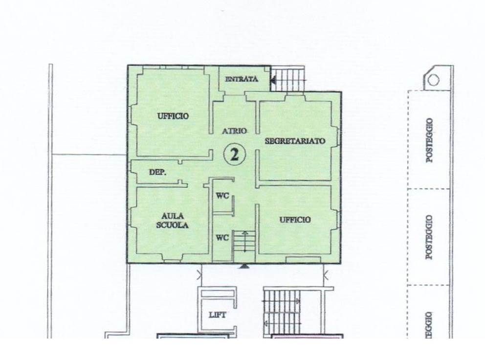
Pedestrian entrance under the portico, hall, two offices, secretary's office, classroom, storage room, two bathrooms, staircase with access to the elevator;
Available immediately.
In addition, it is possible to rent a further 126 m² of space on the floor above, which can easily be connected to this space.

Very well-served area, very close to public transport.
Features
Code:
BE069A
City:
Lugano
Typology:
Office
Rooms:
4.5
Sqm:
126
Bedrooms:
4
Bathrooms:
2
Parking spaces:
4
Floor:
Ground floor
Energetic class:
Not applicable
Orientation:
North East South
Free Sides:
3
Heating:
Central
Accessories
Elevator
Double glazing
Independent entrance
Car passage
Pedestrian crossing
Floorplans
Map
Piazza Molino Nuovo - Lugano (TI)
Information request
Cookie preference